Lot 13 Byrd Ranch Road, Johnson City, TX 78636
Property Photos
Would you like to sell your home before you purchase this one?
Priced at Only: $997,000
For more Information Call:
Address: Lot 13 Byrd Ranch Road, Johnson City, TX 78636
Property Location and Similar Properties
- MLS#: ACT7005372 ( Land )
- Street Address: Lot 13 Byrd Ranch Road
- Viewed: 15
- Price: $997,000
- Price sqft: $0
- Waterfront: No
- Waterfront Type: Pond
- Year Built: Not Available
- Bldg sqft: 0
- Days On Market: 134
- Additional Information
- Geolocation: 30.2253 / -98.3438
- County: BLANCO
- City: Johnson City
- Zipcode: 78636
- Subdivision: Byrd Ranch Estates
- Elementary School: Lyndon B Johnson
- Middle School: Lyndon B Johnson
- High School: Lyndon B Johnson (Johnson City
- Provided by: Southerly Realty, LLC
- Contact: Nick Quijano
- (512) 743-5366
- DMCA Notice
-
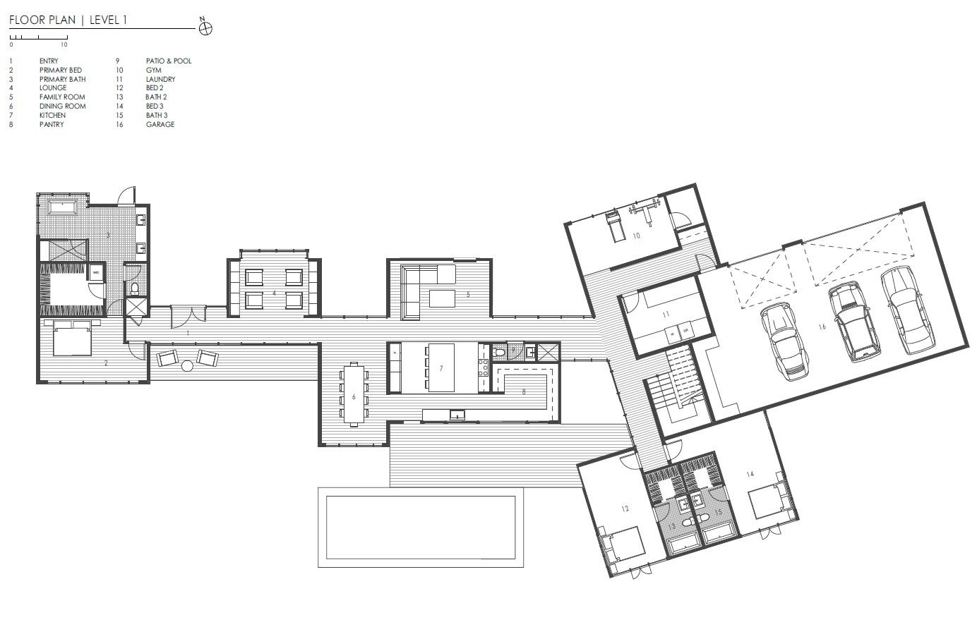
DescriptionWelcome to Byrd Ranch Estatesan exclusive gated ranch community just 10 miles south of Johnson City and 18 miles west of Dripping Springs. Situated on 26.89 high fenced acres, this exceptional property features panoramic Hill Country views, gently rolling topography, mature live oaks and Spanish oaks, and a large seasonal pond straddling this lot and adjacent Lot 12. Architect designed plans by Point B Design Group of Austin pair modern hill country architecture with a thoughtfully integrated single level floor plan. The proposed build includes flexible bedrooms and living spaces, a spacious family room, dining and lounge areas, chefs kitchen with walk in pantry, private gym, and expansive outdoor living spacesplus a pool, patio, and 3 car garage. Plans are fully customizable and can be tailored to suit the buyers vision in partnership with the architect and preferred builder, or bring your own! Located just off Hwy 290 between Blanco and Dripping Springs, Byrd Ranch offers privacy and natural beauty with easy access to top Hill Country vineyards, breweries, and diningles than one hour commute to both Austin Bergstrom and San Antonio International Airports.
Payment Calculator
- Principal & Interest -
- Property Tax $
- Home Insurance $
- HOA Fees $
- Monthly -
Features
Building and Construction
- Covered Spaces: 0.00
- Fencing: Fenced, Perimeter, Wire
- Living Area: 0.00
- Other Structures: None
Land Information
- Lot Features: Rolling Slope, Many Trees, Trees-Large (Over 40 Ft), Trees-Medium (20 Ft - 40 Ft), Views
School Information
- High School: Lyndon B Johnson (Johnson City ISD)
- Middle School: Lyndon B Johnson
- School Elementary: Lyndon B Johnson
Garage and Parking
- Garage Spaces: 0.00
- Open Parking Spaces: 0.00
Eco-Communities
- Water Source: See Remarks
Utilities
- Carport Spaces: 0.00
- Sewer: None
- Utilities: Electricity Available, Sewer Not Available
Finance and Tax Information
- Home Owners Association Fee Includes: Common Area Maintenance
- Home Owners Association Fee: 1028.00
- Insurance Expense: 0.00
- Net Operating Income: 0.00
- Other Expense: 0.00
- Tax Year: 2024
Other Features
- Association Name: Byrd Ranch Estates
- Country: US
- Legal Description: Byrd Ranch Estates, section 2, Lot 13 26.89 acres
- Area Major: BL
- Parcel Number: 19072
- View: Hill Country, Trees/Woods
- Views: 15
Similar Properties
Nearby Subdivisions
464 Ranch
Byrd Ranch At Miller Creek
Byrd Ranch Estates
Creek View Estates Sec 2
Everman West
Flat Creek Ranch
Flat Creek Ranches
Legacy Hills
Legacy Hills Ph 2
Legacy Hills Sub
N/a
None
Preserve At Walnut Springs
Ranchers Estate
Redbud Ranch
Stanton Vistas
Stonegate
The Preserve At Walnut Spgs
The Preserve At Walnut Springs
The Summit At Cypress Mill
The Summit Of Cypress Mill
The Walters Addition























